Kiskunmajsa
Eladó Ház
, Bajcsy-Zsilinszky utca
55 m2
22.500.000 Ft
250032
Kiskunmajsa - Eladó Ház
Bajcsy-Zsilinszky utca
55 m2
22.500.000 Ft
250032
Leírás
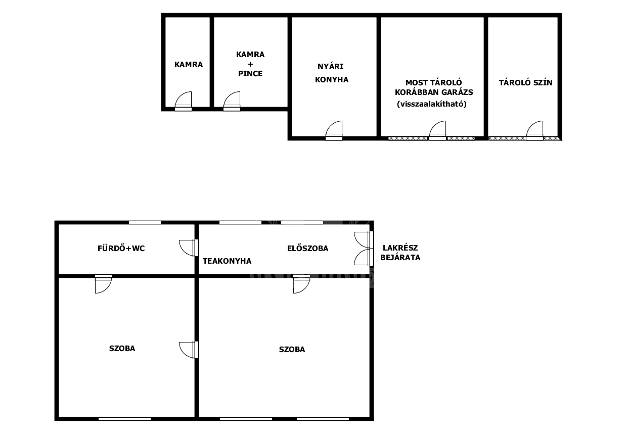
Kiskunmajsa központi részén, a közkedvelt Bajcsy-Zsilinszky utcában 55 m2-es lakótérrel és 45 m2 -es melléképülettel rendelkező jól karbantartott, vályogtégla falazatú, utcafronti házrész eladó.
A lakásban előszoba kicsi konyharésszel, 2 szoba és zuhanyzós fürdő+wc található.
Fűtése gázkonvektoros, a melegvízellátás átfolyós gázüzemű vízmelegítővel lehetséges.
Az áramellátás 6 Amper és még régi alumínium vezetékes. A nyílászárók redőnnyel felszereltek, egy részük már hőszigetelt szerkezetű.
A melléképületet a 1990-es évek elején újraépítették betonalap+vályogtégla falazattal, ahol nyári konyha, tárolókamrák, pince és garázs helyiségek kerültek kialakításra. A garázs bejárati részét jelenleg befalazták, tárolónak használják, de igény esetén kisebb átalakítással visszaállítható az eredeti állapotára.
Az ingatlan egy L-alakú polgári jellegű épület, melyben két lakás található, osztatlan közös tulajdon besorolással. A másik lakás tulajdonosa csendes, egyedülálló lakos.
A lakáshoz kertrész is tartozik és fedett teraszrész a melléképület előtt. Autóbeállási lehetőség is adott.
AZ INGATLAN NEM HITELEZHETŐ!
Keressen bizalommal a megtekintéssel és további információkkal kapcsolatban!
Paraméterek
Paraméterek
| Település: | 6120 Kiskunmajsa |
| Közterület: | Bajcsy-Zsilinszky utca |
| Tranzakció típusa: | Eladó |
| Ingatlan típusa: | Ház / Házrész |
| Alapterület: | 55 m2 |
| Szobaszám: | 2 |
| Építés éve: | 1950 |
| Költözhető: | azonnal |
| Szerkezet: | Vályogház |
| Telek terület: | 245 m2 |
| Állapot: | Jó állapotú |
| Fűtés: | Gáz - konvektor |
| Belmagasság: | 3 méter felett |
| Wc és fürdőszoba: | Egy helyiségben |
| Terasz: | 8 m2 |
| Akadálymentesített: | Nem |
| Kilátás: | Utcára néző, Udvarra néző |
| Parkolás: | 1 állásos garázs |
| Extrák: | Tehermentes |
Az ingatlan elhelyezkedése
Kapcsolati adatok
Érdeklődjön az ingatlanról, e-mailben!
ADATKEZELÉSI TÁJÉKOZTATÓ


Az oldal üzemeltetője adatkezelőként: Babarczi Tímea egyéni vállalkozó
Babarczi Tímea egyéni vállalkozó a Magyar Ingatlanközvetítők Országos Szövetségének (MIOSZ) tagja.
Az üzemeltető adatai:
Név: Babarczi Tímea
Székhely: 6120 Kiskunmajsa, Petőfi S. u. 31.
Tel: +36 (20) 401 0977
Fax:
Facebook: https://www.facebook.com/babarczi.timea/
Adatvédelmi kapcsolattartó Babarczi Tímea, e-mail: babarczi.timea@majsahome.hu
I. Bevezetés
Babarczi Tímea egyéni vállalkozó, mint adatkezelő (Adatkezelő) az alábbiakban ismerteti adatkezelési elveit, bemutatja azokat az elvárásokat, melyeket saját magával, mint adatkezelővel szemben megfogalmazott, és betart. Adatkezelési alapelvei összhangban vannak az adatvédelemmel kapcsolatos hatályos jogszabályokkal, így különösen az alábbiakkal:
Jelen szabályok kialakításakor különös tekintettel vettük figyelembe az alábbi jogszabályi kötelezettségeket:
- A GDPR, az Európai Parlament és a Tanács (EU) 2016/679 számú rendelete a természetes személyeknek a személyes adatok kezelése tekintetében történő védelméről és az ilyen adatok szabad áramlásáról, valamint a 95/46/EK rendelet hatályon kívül helyezéséről (Általános Adatvédelmi Rendelet, továbbiakban: Rendelet)
- az információs önrendelkezési jogról és az információszabadságról szóló 2011. évi CXII. törvény (Info. tv.),
- 2000. évi C. törvény - a számvitelről (Számv. tv.);
- 2001. évi CVIII. törvény - az elektronikus kereskedelmi szolgáltatások, valamint az információs társadalommal összefüggő szolgáltatások egyes kérdéseiről (Eker. tv.);
- 2008. évi XLVIII. törvény - a gazdasági reklámtevékenység alapvető feltételeiről és egyes korlátairól (Grtv.).
Tájékoztatóban használt kifejezéseket a Rendelet értelmező rendelkezései között meghatározott fogalmak szerint kell értelmezni. Amennyiben kérdése lenne, vagy bármely fogalom nem lenne egyértelmű, kérjük forduljon az adatvédelmi kapcsolattartónkhoz.
Alapvető fogalmak a személyes adatok kezelésével kapcsolatban:
„személyes adat”: azonosított vagy azonosítható természetes személyre („érintett”) vonatkozó bármely információ; amelyből azonosítható az a természetes személy, aki közvetlen vagy közvetett módon, különösen valamely azonosító, például név, szám, helymeghatározó adat, online azonosító vagy a természetes személy testi, fiziológiai, genetikai, szellemi, gazdasági, kulturális vagy szociális azonosságára vonatkozó egy vagy több tényező alapján azonosítható.
„adatkezelés”: a személyes adatokon vagy adatállományokon automatizált vagy nem automatizált módon végzett bármely művelet vagy műveletek összessége, így a gyűjtés, rögzítés, rendszerezés, tagolás, tárolás, átalakítás vagy megváltoztatás, lekérdezés, betekintés, felhasználás, közlés továbbítás, terjesztés vagy egyéb módon történő hozzáférhetővé tétel útján, összehangolás vagy összekapcsolás, korlátozás, törlés, illetve megsemmisítés.
„adatkezelő”: az a természetes vagy jogi személy, közhatalmi szerv, ügynökség vagy bármely egyéb szerv, amely a személyes adatok kezelésének céljait és eszközeit önállóan vagy másokkal együtt meghatározza; ha az adatkezelés céljait és eszközeit az uniós vagy a tagállami jog határozza meg, az adatkezelőt vagy az adatkezelő kijelölésére vonatkozó különös szempontokat az uniós vagy a tagállami jog is meghatározhatja.
„adatfeldolgozó”: az a természetes vagy jogi személy, közhatalmi szerv, ügynökség vagy bármely egyéb szerv, amely az adatkezelő nevében személyes adatokat kezel.
„adatvédelmi incidens”: a biztonság olyan sérülése, amely a továbbított, tárolt vagy más módon kezelt személyes adatok véletlen vagy jogellenes megsemmisítését, elvesztését, megváltoztatását, jogosulatlan közlését vagy az azokhoz való jogosulatlan hozzáférést eredményezi
II. JOGALAPOK BABARCZI TÍMEA EGYÉNI VÁLLALKOZÓ ADATKEZELÉSE SORÁN
A személyes adatok Babarczi Tímea egyéni vállalkozó általi felvétele és kezelése rendszerint az alábbi jogalapokon nyugszik:
Bizonyos személyes adatokat az Adatkezelő azért gyűjt és kezel, mert törvényi előírás elrendeli (Rendelet 6. cikk (1) bek. c) pont). Ilyen törvény a pénzmosás és a terrorizmus finanszírozása megelőzéséről és megakadályozásáról szóló 2017. évi LIII. törvény törvény (továbbiakban: Pmtv.), amely előírja az Adatkezelő számára, hogy az ügyfélnek minősülő személyek ügyfél-átvilágítását elvégezze, és meghatározott személyes adataikat rögzítse és ezen adatokat, valamint a kapcsolódó dokumentumokat megőrizze.
Szintén ilyen törvény a gazdasági reklámtevékenység alapvető feltételeiről és egyes korlátairól szóló 2008. évi XLVIII. törvény, az Adatkezelőtől megrendelt reklámmegjelenés körében.
Személyes adatok kezelése alapulhat továbbá az adózásra, ill. a számviteli bizonylatok megőrzésére vonatkozó törvényeken, mint a számvitelről szóló 2000. évi C. törvény, az általános forgalmi adóról szóló 2007. évi CXXVII. törvény.
Lentebb tájékoztatást kap arról, mely adatainak kezelése alapul a Pmtv. vagy más törvény rendelkezésén.
Egyes személyes adatokat az Adatkezelő azért kezel, mert az Önnel kötött szerződés teljesítéséhez szükséges, vagy, mert az ilyen szerződés megkötéséhez vezető folyamat során szükséges (Rendelet 6. cikk (1) bek. b) pont).
Az Adatkezelő ezen a jogalapon kezeli az Ön azon adatait, amelyek az ingatlanközvetítésre vonatkozó szerződés teljesítéséhez, ill. megkötéséhez szükségesek. Lentebb tájékoztatást kap arról, mely adatait kezeli az Adatkezelő szerződés teljesítése érdekében. Ezen adatokat a szerződéskötéshez és a szerződés teljesítéséhez meg kell adnia. Amennyiben az adatokat Ön nem adja meg az Adatkezelőnek, akkor a szerződés nem jön létre, vagy a szerződés teljesítése megnehezül.
Az Adatkezelő honlapján közzétett álláshirdetésre történő jelentkezés során megadott adatok kezelése az Önnel kötendő, foglalkoztatásra irányuló szerződés megkötéséhez vezető folyamat (álláspályázatok elbírálása, szerződéskötés) során szükséges.
Lentebb tájékoztatást kap arról, mely adatainak kezelése szükséges szerződés teljesítéséhez, vagy a szerződéskötéshez vezető folyamat során.
Vannak olyan személyes adatok, amelyeket az Adatkezelő az Ön hozzájárulása alapján (Rendelet 6. cikk (1) bek. a) pont) kezel. Egyes személyes adatainak kezeléséhez az Adatkezelővel kötött megbízási szerződés aláírásával vagy vételi/eladási ajánlat Adatkezelőn keresztül megtételével vagy az ajánlatnak az Adatkezelővel való közlésével járul hozzá. Ön hozzájárul személyes adatainak kezeléséhez azzal is, ha az Adatkezelővel való személyes, telefonos, elektronikus vagy egyéb úton felveszi a kapcsolatot eladó/kiadó ingatlannal kapcsolatos tájékoztatás kérése céljából, vagy ezen utak valamelyikén eladási vagy vételi ajánlatot tesz, és ebből a célból személyes adatait megadja. Személyes adatainak kezeléséhez való hozzájárulás történhet az Adatkezelő honlapján elérhető szolgáltatás igénybevételével (hírlevél feliratkozás, ill. segítő szolgáltatások).
Lentebb tájékoztatást kap arról, mely adatainak kezelése alapul önkéntes hozzájárulásán.
A fentieken túl, a felvett személyes adatokat Babarczi Tímea egyéni vállalkozó adott esetben akkor is kezelheti, ha az adatok kezelése saját vagy egy harmadik fél jogos érdekeinek érvényesítéséhez szükséges (Rendelet 6. cikk (1) bek. f) pont), de ezen érdekekkel szemben elsőbbséget élveznek az Ön olyan érdekei vagy alapvető jogai és szabadságai, amelyek személyes adatok védelmét teszik szükségessé.
III. ADATKEZELÉSEK, JOGALAPJUK, CÉLJAIK, IDŐTARTAMUK
Az Adatkezelő többféle tevékenysége során, többféle célból kezel személyes adatokat. Az Adatkezelő alábbi tevékenységei során folytat adatkezelést:
- Ingatlanközvetítési, értékbecslési tevékenység: Babarczi Tímea egyéni vállalkozó megbízási szerződés vagy szolgáltatói szerződés alapján ingatlanközvetítői, ill. értékbecslési szolgáltatást nyújt.
- Hirdetési szolgáltatás: az érintettek (eladók és bérbeadók) hirdetési megjelenést rendelhetnek meg Babarczi Tímea egyéni vállalkozó honlapján az alábbi feltételekkel. Babarczi Tímea egyéni vállalkozó honlapján nyilvánosságra hozza a megrendelt hirdetést. A hirdetés időtartama: amíg az érintett megrendelő a hirdetésfelvételi űrlapon azt kérte. A hirdetésekben kizárólag az érintettek által önkéntesen megadott adatok szerepelnek.
A hirdetések URL-je: https://majsahome.hu/
- Hírlevél szolgáltatás: Babarczi Tímea egyéni vállalkozó honlapján hírlevél szolgáltatást nyújt, amelyet a szükséges adatok megadása mellett bárki igénybe vehet.
- eDM levelek: az érintett kérése esetén Babarczi Tímea egyéni vállalkozó a megjelölt e-mail címre közvetlen levelet küld, amelyben tájékoztatást ad Babarczi Tímea egyéni vállalkozó által nyújtott szolgáltatásokról, esetleges akciókról, más fontos információkról.
- Segítő szolgáltatások: Babarczi Tímea egyéni vállalkozó honlapján többféle, ingatlan-forgalmazással kapcsolatos segítő szolgáltatást nyújt, amelyeket az érintettek külön-külön használhatnak fel, ill. iratkozhatnak fel ezekre. A hírlevelek és kalkulátorok egy részét a MIOSZ üzemelteti, adatkezelője a MIOSZ Babarczi Tímea egyéni vállalkozó adatfeldolgozóként jár el ezek esetében.
Segítő szolgáltatások: ingyenes hitelügyintézés, állami támogatások ismertetése, ügyfél-elégedettségi nyilatkozatok, ingatlanilleték kalkulátor, ingatlanadó kalkulátor (személyi jövedelemadó), energetikai tanúsítvány beszerzése, napló értesítő információs rendszer
- Statisztikai és értékesítési adatbázis képzése: Babarczi Tímea egyéni vállalkozó belső nyilvántartás, ingatlanpiaci elemzések készítése céljából, az értékesítés elősegítésére, ill. értékbecslés céljából statisztikai és értékesítési adatbázist készít az ingatlanok adataiból, továbbá a hirdetésekből és az eladással kapcsolatos adatokból.
- Álláshirdetés: Babarczi Tímea egyéni vállalkozó honlapján lehetőség van álláskeresőknek jelentkezni, amennyiben ez külön jelzésre kerül.
A személyes adatok köréről, az adatkezelés céljáról és jogalapjáról, az adatkezelés időtartamáról az alábbi táblázatból kap részletes tájékoztatást.
|
Érintett |
Kezelt adatok |
Adatkezelés célja |
Adatkezelés jogalapja |
Adatkezelés időtartama |
|---|---|---|---|---|
|
Ingatlan tulajdonos (eladó/bérbeadó) |
családi és utónév, születési családi és utónév, állampolgárság, születési hely és idő, anyja születési neve, lakcíme, ennek hiányában tartózkodási helye, azonosító okmányának típusa és száma |
A Pmtv. szerinti ügyfél-átvilágítás elvégzése |
Rendelet 6. cikk (1) bek. c) pont
Pmtv. 7-9. § |
Az adatrögzítéstől számított 8 évig |
|
Ingatlan tulajdonos (eladó/bérbeadó) |
családi és utónév, születési családi és utónév, lakcím, telefonszám, e-mail cím
Az ingatlan következő adatai: eladó/bérbadó ingatlan címe és helyrajzi száma, ingatlan jellege (pl. családi ház, társasház, telek), eladási ár/bérleti díj, építés éve, fekvés (belterület, külterület), építési állapot (pl. új, újszerű, felújított, használt, felújítandó, bontandó), telek területe és belső terület (hasznos alapterület), építési mód, komfortfokozat, fűtési mód, szobaszám, ingatlan külső/belső állapota, ingatlanról készült fényképfelvételek, alaprajz. Szükséghez képest az az ingatlan egyéb tulajdonságai és műszaki adatai. |
Ingatlanközvetítésre, ill. értékbecslésre szóló megbízás teljesítése, tájékoztatás, az eladó/bérbeadó és a vevő/bérlő közötti kapcsolat létrehozása, az adásvételi/bérleti szerződés megkötésének elősegítése.
|
Rendelet 6. cikk (1) bek. b) pont |
Az adatrögzítéstől számított legfeljebb 5 évig, vagy ha ez hosszabb, akkor a megbízás teljesítésétől/megszűnésétől számított 5 évig.
|
|
Ingatlan tulajdonos (eladó/bérbeadó) |
családi és utónév, születési családi és utónév, állampolgárság, születési hely és idő, anyja születési neve, lakcíme, ennek hiányában tartózkodási helye, azonosító okmányának típusa és száma adóazonosító jel, személyi azonosító jel, bankszámla szám, telefonszám, e-mail cím, ingatlan helyrajzi száma, vételár |
Az eladó/bérbeadó és a vevő/bérlő közötti adásvételi/bérleti szerződés megkötésének elősegítése a szerződéskötéshez szükséges adatok okiratszerkesztő ügyvéd részére való továbbításával. |
Rendelet 6. cikk (1) bek. a) pont (önkéntes hozzájárulás) |
Az adatkezelési cél megvalósulásáig, de legfeljebb az adatrögzítéstől számított 5 évig. |
|
Ingatlan tulajdonos (eladó/bérbeadó) |
Az ingatlan következő adatai: eladó/bérbeadó ingatlan címe (házszám nélkül) és helyrajzi száma, ingatlan jellege (pl. családi ház, társasház, telek), vételár/bérleti díj, eladás/bérbeadás időpontja, építés éve, fekvés (belterület, külterület), építési állapot (pl. új, újszerű, felújított, használt, felújítandó, bontandó), telek területe és belső terület (hasznos alapterület), építési mód, komfortfokozat, fűtési mód, szobaszám, ingatlan külső/belső állapota, ingatlanról készült fényképfelvételek, alaprajz. Szükséghez képest az az ingatlan egyéb tulajdonságai és műszaki adatai. |
Az ingatlan adatainak statisztikai és értékesítési adatbázis képzés és értékbecslés céljára való felhasználása, kivéve: ügyfél neve, házszám. |
Rendelet 6. cikk (1) bek. a) pont (önkéntes hozzájárulás) |
Az érintett hozzájárulásának visszavonásáig, de legfeljebb az adatrögzítéstől számított 10 évig. |
|
Ajánlattevő Vevő/bérlő |
családi és utónév, születési családi és utónév, állampolgárság, születési hely és idő, anyja születési neve, lakcíme, ennek hiányában tartózkodási helye, azonosító okmányának típusa és száma |
A Pmtv. szerinti ügyfél-átvilágítás elvégzése |
Rendelet 6. cikk (1) bek. c) pont
Pmtv. 7-9. § |
Az adatrögzítéstől számított 8 évig |
|
Ajánlattevő Vevő/bérlő |
családi és utónév, lakcím, telefonszám, e-mail cím |
Ingatlanközvetítésre szóló megbízás teljesítése, tájékoztatás, az eladó/bérbeadó és a vevő/bérlő közötti kapcsolat létrehozása, az adásvételi szerződés megkötésének elősegítése |
Rendelet 6. cikk (1) bek. a) pont (önkéntes hozzájárulás) |
Az adatrögzítéstől számított legfeljebb 5 évig |
|
Ajánlattevő Vevő/bérlő |
családi és utónév, születési családi és utónév, állampolgárság, születési hely és idő, anyja születési neve, lakcíme, ennek hiányában tartózkodási helye, azonosító okmányának típusa és száma adóazonosító jel, személyi azonosító jel, telefonszám, e-mail cím |
Az eladó/bérbeadó és a vevő/bérlő közötti adásvételi/bérleti szerződés megkötésének elősegítése a szerződéskötéshez szükséges adatok okiratszerkesztő ügyvéd részére való továbbításával. |
Rendelet 6. cikk (1) bek. a) pont (önkéntes hozzájárulás) |
Az adatrögzítéstől számított legfeljebb 5 évig |
|
Megtekintő |
Név, lakcím, telefonszám, e-mail cím |
Ingatlanközvetítésre szóló megbízás teljesítése (az ingatlan bemutatás megtörténtének rögzítse, a megtekintett ingatlannal kapcsolatban tájékoztatás, az eladó/bérbeadó és a vevő/bérlő közötti kapcsolat létrehozása) |
Rendelet 6. cikk (1) bek. a) pont (önkéntes hozzájárulás) |
Az adatrögzítéstől számított legfeljebb 5 évig |
|
Egyéb érdeklődő, vevőjelölt |
Név; telefonszám; e-mail cím; keresett ingatlannal kapcsolatos információk: ingatlan vételára/bérleti díja, ingatlan elhelyezkedése, jellege, fekvése, hasznos alapterülete, építési módja, komfortfokozata, fűtési módja, szobaszáma, ill. építési telek területe |
Tájékoztatás, érdeklődő megkeresésére való válaszadás, az érdeklődőnek megfelelő ingatlan keresése, az eladó/bérbeadó és a vevő/bérlő közötti kapcsolat létrehozása. |
Rendelet 6. cikk (1) bek. a) pont (önkéntes hozzájárulás) |
Az adatrögzítéstől számított legfeljebb 5 évig, kivéve ha a határidő letelte előtt Ön másként rendelkezik (például kéri, hogy az adatkezelő az ingatlan keresést folytassa) |
|
Hirdető |
Név, lakcím/székhely, adószám (ha van)
|
Hirdetési szolgáltatás nyújtása az Adatkezelő honlapján.
|
Rendelet 6. cikk (1) bek. c) pont
Grtv. 5. §
|
A hirdetés közzétételétől számított 5 évig
|
|
Hirdető |
Név, e-mail cím, telefonszám Az ingatlan adatai: ingatlan fekvése (település, kerület, közterület neve, emelet), ingatlan jellege, építés éve, tájolás, kilátás, építési állapot, alapterület, telekterület, belmagasság, építési mód, komfortfokozat, fűtési mód, szobaszám, parkolási lehetőség, irányár/bérleti díj, fényképfelvételek, hirdetés szövege. |
Hirdetési szolgáltatás nyújtására vonatkozó megrendelés teljesítése az Adatkezelő honlapján. |
Rendelet 6. cikk (1) bek. b) pont |
Az adatrögzítéstől számított legfeljebb 5 évig |
|
Hirdető |
Az ingatlan adatai: ingatlan fekvése (település, kerület, közterület neve, emelet), ingatlan jellege, építés éve, tájolás, kilátás, építési állapot, alapterület, telekterület, belmagasság, építési mód, komfortfokozat, fűtési mód, szobaszám, parkolási lehetőség, irányár, fényképfelvételek |
Az ingatlan és a hirdetés adatait statisztikai és értékesítési adatbázis képzése és értékbecslés céljára használni. |
Rendelet 6. cikk (1) bek. a) pont (önkéntes hozzájárulás) |
Az érintett hozzájárulásának visszavonásáig, de legfeljebb az adatrögzítéstől számított 10 évig. |
|
Hírlevél feliratkozó |
Név, e-mail cím |
Hírlevél szolgáltatás nyújtása |
Rendelet 6. cikk (1) bek. a) pont (önkéntes hozzájárulás) |
Hírlevél szolgáltatásról való leiratkozásig (érintett által kért törlésig), vagy a hírlevél szolgáltatás megszűnéséig |
|
eDM levél feliratkozó |
Név, e-mail cím |
Marketing célú tájékoztató levél küldése. |
Rendelet 6. cikk (1) bek. a) pont (önkéntes hozzájárulás) |
eDM levelekről való leiratkozásig (érintett által kért törlésig), vagy az eDM szolgáltatás megszűnéséig |
|
Segítő szolgáltatás igénybe vevője |
A szolgáltatás jellegétől függően: az ingatlan típusa, a vagyonszerzés módja, az ingatlan forgalmi értéke, az eladás és a vásárlás éve, eladási és vásárlási ár, megszerzés költségei, értékesítés költségei, értéknövelő beruházások értéke, név, havi nettó jövedelem, igényelt hitel összege, ingatlan vételára e-mail cím, telefonszám |
A honlapon nyújtott segítő szolgáltatások nyújtása, szükség esetén e-mailes vagy telefonos kapcsolatfelvétel, tájékoztatás. |
Rendelet 6. cikk (1) bek. a) pont (önkéntes hozzájárulás) |
A szolgáltatás teljesítéséhez szükséges ideig.
Hitelügyintézéshez kapcsolódó szolgáltatás esetén: szolgáltatás teljesítéséig, de legfeljebb 5 évig, kivéve, ha a határidő letelte előtt Ön másként rendelkezik |
|
Álláshirdetésre jelentkező |
A jelentkezésben megadandó: név, e-mail cím, telefonszám.
A jelentkező által esetlegesen magadott: lakcím, születési hely, idő, anyja neve, iskolai végzettség, nyelvismeret, előző munkahely(ek). |
Álláshely betöltése, amelynek keretében: álláspályázatok értékelése, elbírálása, személyes állásinterjú egyeztetése, kiválasztott jelölttel szerződéskötés |
Rendelet 6. cikk (1) bek. b) pont (önkéntes hozzájárulás) |
A jelentkezők adatait az Adatkezelő az álláshely betöltéséig kezeli |
|
Energetikai tanúsítvány |
Az ingatlan adatai: ingatlan fekvése (település, kerület, közterület neve, emelet, ajtó)
Eladó családi és utónév, telefonszám, e-mail cím
|
Energetikai tanúsítvány készítéséhez az ingatlan adatainak és az eladó adatainak továbbítása energetikus részére. |
|
Az adatkezelési cél megvalósulásáig, de legfeljebb az adatrögzítéstől számított 5 évig. |
|
Napló értesítő |
Az ingatlan következő adatai: eladó/bérbeadó ingatlan címe (házszám nélkül) és helyrajzi száma, ingatlan jellege (pl. családi ház, társasház, telek), vételár/bérleti díj, eladás/bérbeadás időpontja, építés éve, fekvés (belterület, külterület), építési állapot (pl. új, újszerű, felújított, használt, felújítandó, bontandó), telek területe és belső terület (hasznos alapterület), építési mód, komfortfokozat, fűtési mód, szobaszám, ingatlan külső/belső állapota, ingatlanról készült fényképfelvételek, alaprajz. Szükséghez képest az az ingatlan egyéb tulajdonságai és műszaki adatai. Eladó családi és utónév, telefonszám, e-mail cím
|
Az eladó/bérbeadó tájékoztatására: az ingatlanközvetítés fontos lépéseit tartalmazó elektronikus napló értesítő küldése. |
|
Az adatkezelési cél megvalósulásáig, de legfeljebb az adatrögzítéstől számított 5 évig. |
A táblázatban használt fogalmak:
Ingatlan tulajdonos (eladó): Olyan személy, aki az Adatkezelő által közvetített ingatlan tulajdonosa, ill. az ingatlanra vonatkozó vagyoni jog (pl. haszonélvezeti jog) jogosultja, ill. aki az ingatlan közvetítésére az Adatkezelővel megbízási szerződést kötött, valamint ezek meghatalmazottja.
Vevő, ajánlattevő: Olyan személy, aki az Adatkezelő által közvetített ingatlanra vételi ajánlatot tett.
Megtekintő: Olyan személy, aki az Adatkezelő által közvetített ingatlant megtekintette
Egyéb érdeklődő, vevőjelölt: A fentieken túl olyan személy, aki az Adatkezelő ingatlanközvetítési tevékenysége körében az Adatkezelőtől személyesen, telefonon, elektronikus vagy más úton tájékoztatást kér, tőle érdeklődik, ideértve különösen az Adatkezelő megkeresését eladási vagy vételi érdeklődés céljából, ill. aki az Adatkezelőnél ingatlankeresőként jelentkezik.
Hirdető: olyan érintett, aki Babarczi Tímea egyéni vállalkozó hirdetési szolgáltatását igénybe veszi.
Hírlevél feliratkozó: olyan érintett, aki a honlapon működő hírlevél szolgáltatásra feliratkozott.
eDM levél feliratkozó: olyan érintett, aki Babarczi Tímea egyéni vállalkozó által nyújtott szolgáltatásokról, esetleges akciókról, már fontos információkról tájékoztató e-mailekre feliratkozott.
Segítő szolgáltatás igénybe vevője: olyan érintett, aki a honlapon működő valamely segítő szolgáltatást igénybe vette.
Álláshirdetésre jelentkező: a honlapon meghirdetett álláslehetőségre jelentkező érintett.
IV. ADATFELDOLGOZÓINK
A személyes adatai szerverünkön tárolásra kerülnek. A tárhely szolgáltatást adatfeldolgozóként a Webrakéta Kft. (székhely: 1111 Budapest,
Lágymányosi út 12., telefon: +36(30) 37 38 706, e-mail cím: info@ingatlanszoftver.hu)végzi.
Amennyiben a megbízás teljesítésének keretében, külső szolgáltatónál megjelentetett hirdetésben az ingatlanra vonatkozó adatok megjelennek, akkor ezen adatok tekintetében adatfeldolgozó az adott hirdetési felület szolgáltatója.
Egyes ügynökeink, közreműködőink nem munkavállalói státuszban járnak el, ők független vállalkozóként adatfeldolgozói tevékenységet látnak el.
Az Ön adatai továbbítására sor kerülhet az alábbi esetekben:
- Amennyiben az érintett az Adatkezelő által ajánlott hitelközvetítő segítségét kívánja igénybe venni, akkor e célból a neve, telefonszáma, e-mail címe, és esetlegesen az igényelni kívánt hitel összege, és a hiteligényléssel kapcsolatos, Ön által megadott további adatok továbbításra kerülnek a hitelközvetítő részére. Ezen adattovábbítás alkalmával Ön a hitelközvetítő nevéről, elérhetőségeiről az Adatkezelőtől tájékoztatást fog kapni.
- Amennyiben az érintett az Adatkezelő által ajánlott ügyvédet kívánja igénybe venni, akkor a szerződés előkészítéséhez szüksége adatok továbbításra kerülnek az okiratszerkesztő ügyvéd részére az adásvételi szerződés és az egyéb szükséges dokumentumok elkészítése céljából. Ezen adattovábbítás alkalmával Ön az ügyvéd nevéről, elérhetőségeiről az Adatkezelőtől tájékoztatást fog kapni.
- Amennyiben az érintett az Adatkezelő által ajánlott szakembert kívánja igénybe venni az energetikai tanúsítvány elkészítéséhez, akkor az eladó neve, címe, telefonszáma, az ingatlan adatai e célból továbbításra kerülnek. Ezen adattovábbítás alkalmával Ön a tanúsítványt készítő szakember nevéről, elérhetőségeiről az Adatkezelőtől tájékoztatást fog kapni.
V. STATISZTIKAI ADATBÁZIS KÉPZÉS, ADATTOVÁBBÍTÁS
Babarczi Tímea egyéni vállalkozó a Magyar Ingatlanközvetítők Országos Szövetségének (MIOSZ) tagja. A MIOSZ kiemelt együttműködő szoftverfejlesztő- és szolgáltató partnere, back office és front office megoldások, valamint a statisztikai és értékesítési adatbázis képzés tekintetében a VÁR-KÖZ Kft.
A hatékonyabb ügyfélkiszolgálás, az értékesítés hatékonyságának növelése érdekében, valamint a megfelelőbb irányár-meghatározás és magas szintű értékbecslési szolgáltatás érdekében statisztikai és értékesítési célból a hirdetések és az ingatlanok adatait a Babarczi Tímea egyéni vállalkozó megosztja a MIOSZ-szal a VÁR-KÖZ Kft.-vel, és a MIOSZ együttműködő partnereivel. Hirdetés alatt kell érteni azt is, amikor az ingatlan hirdetője ingatlanközvetítésre irányuló szerződés nélkül – közvetlenül, saját tevékenysége útján - kizárólag a hirdetési felületet veszi igénybe.
A MIOSZ adatkezelési szabályzata az alábbi linken érhető el: http://www.majsahome.hu/adatkezelesi-dokumentumok/az-ingatlaniroda-adatkezelesi-tajekoztatoja
A VÁR-KÖZ Kft. adatkezelési szabályzata az alábbi linken érhető el: https://www.varkoz.hu/adatvedelmi-nyilatkozat
A MIOSZ partereinek listája: http://miosz.lc.hu/partnerirodak/magyar-ingatlankozvetitok-orszagos-szovetsege
A fentiek alapján a MIOSZ és a VÁR-KÖZ Kft. részére statisztikai és értékesítési adatbázis képzés céljából az alábbi adatok kerülnek továbbításra: ingatlan elhelyezkedésére vonatkozóan: irányítószám, település/kerület, közterület neve, emelet; az épület szintjei; az ingatlan jellege (családi ház, társasház, telek), ingatlan fekvése (belterület, külterület); építési állapot; telek területe; belső terület (hasznos alapterület); szobaszám; építés módja (tégla, panel, vegyes, egyéb építési mód); komfortfokozat; fűtési mód; forgalomképesség értékelése (1-10); építés éve; ingatlan külső és belső állapota; alaprajz; ingatlanról készül fényképek; eladás időpontja; értékesítési vételár; extra felszereltség, tulajdonságok; hirdetés szövege.
Felhívjuk a figyelmét arra, hogy nem kerülnek továbbításra az ingatlan pontos címére vonatkozó adatok, így az ingatlan házszáma, ill. helyrajzi száma.
Az adattovábbítás címzettjeinek elérhetőségei:
Magyar Ingatlanközvetítők Országos Szövetsége, székhely/levelezési cím: 1126 Budapest, Orbánhegyi út 14., telefonszám: 06 30 485 5157, e-mail cím: titkarsag@miosz.hu
Vár-Köz Kft., székhely/levelezési cím: 1131 Budapest, Kucsma utca 13-15. fszt. 50., telefonszám: 06 30 328 6789, e-mail cím: adatkezeles@lc.hu
Az adattovábbítás címzettjei a továbbított adatokat kizárólag a fent megjelölt célból kezelhetik.
VI. AZ ADATOK MEGISMERÉSÉRE JOGOSULTAK KÖRE
Az adatkezelés ideje alatt személyes adatait az Adatkelezőnél csak az Adatkezelő vezetője, a cég tevékenységben személyesen közreműködő tagjai, valamint olyan munkavállalók vagy megbízottak ismerhetik meg, akik munkaköri feladatainak ellátásához ezen adatokhoz való hozzáférés szükséges. Ezen túl adatait olyan személyek ismerhetik meg, akik olyan szolgáltatóknak, megbízottaknak dolgoznak, akik az Adatkezelő részére szolgáltatást nyújtanak, amennyiben munkaköri feladatainak ellátásához ezen adathoz való hozzáférés szükséges.
VII. AZ ADATOK BIZTONSÁGA
A személyes adatok biztonságát Babarczi Tímea egyéni vállalkozó a technika szintjének megfelelő fizikai és technikai védelemmel biztosítja, amely megakadályozza az adatokhoz történő illetéktelen hozzáférést, azok illetéktelen megváltoztatását vagy továbbítását, szándékos és véletlenszerű törlését vagy megsemmisülését. Babarczi Tímea egyéni vállalkozó kötelezettséget vállal arra, hogy az ennek ellenére bekövetkező adatvédelmi incidensek esetén haladéktalanul felfüggeszti a szolgáltatást és nyilatkozatot tesz közzé a hiba elhárításáig.
VIII. AZ ADATKEZELÉSSEL KAPCSOLATOS JOGOK, JOGORVOSLATI LEHETŐSÉGEK
Ön, mint érintett kérelmezheti Babarczi Tímea egyéni vállalkozótól, mint Adatkezelőtől az Önre vonatkozó személyes adatokhoz való hozzáférést, azok helyesbítését, törlését vagy kezelésének korlátozását, és tiltakozhat az ilyen személyes adatok kezelése ellen.
Ön jogosult arra, hogy bármikor visszavonja a hozzájárulását a személyes adatai kezeléséhez. A visszavonás nem érinti a visszavonás előtt, hozzájárulás alapján végrehajtott adatkezelés jogszerűségét, valamint nem érinti azon adatokat, amelynek kezelésére az Adatkezelő jogszabály alapján köteles vagy jogosult.
Ön jogosult arra, hogy az Adatkezelőtől visszajelzést kapjon arra vonatkozóan, hogy személyes adatainak kezelése folyamatban van-e. Ha ilyen adatkezelés folyamatban van, Ön jogosult arra, hogy tájékoztatást kapjon az adatkezelés céljairól, az érintett személyes adatok kategóriáiról, az adatok címzettjeinek kategóriáiról, a személyes adatok tárolásának tervezett időtartamáról (ha ez nem lehetséges, ezen időtartam meghatározásának szempontjairól).
Az Adatkezelő a kezelt személyes adatok másolatát kérésére az Ön rendelkezésére bocsátja. A további másolatokért az Adatkezelő az adminisztratív költségeken alapuló, ésszerű mértékű díjat számíthat fel. Ha Ön elektronikus úton nyújtotta be a kérelmet, az információkat széles körben használt elektronikus formátumban kell rendelkezésre bocsátani, kivéve, ha azt Ön másként kéri.
A személyes adatot törölni kell, ha:
- a személyes adatra már nincs szükség abból a célból, amelyből azt gyűjtötték vagy más módon kezelték;
- az érintett visszavonja az adatkezelés alapját képező hozzájárulását, és az adatkezelésnek nincs más jogalapja;
- az érintett tiltakozik az adatkezelés ellen, és nincs elsőbbséget élvező jogszerű ok az adatkezelésre, vagy az érintett a Rendelet 21. cikk (2) bekezdése alapján tiltakozik az adatkezelés ellen;
- a személyes adatokat jogellenesen kezelték;
- a személyes adatokat az adatkezelőre alkalmazandó uniós vagy tagállami jogban előírt jogi kötelezettség teljesítéséhez törölni kell;
- a személyes adatok gyűjtésére a közvetlenül gyermekeknek kínált, információs társadalommal összefüggő szolgáltatások kínálásával kapcsolatosan került sor.
Ön kérheti, hogy az Adatkezelő korlátozza az adatkezelést, ha az alábbiak valamelyike teljesül:
- Ön vitatja a személyes adatok pontosságát, ez esetben a korlátozás arra az időtartamra vonatkozik, amely lehetővé teszi, hogy az adatkezelő ellenőrizze a személyes adatok pontosságát;
- az adatkezelés jogellenes, és Ön ellenzi az adatok törlését, és ehelyett kéri azok felhasználásának korlátozását;
- az adatkezelőnek már nincs szüksége a személyes adatokra adatkezelés céljából, de Ön igényli azokat jogi igények előterjesztéséhez, érvényesítéséhez vagy védelméhez; vagy
- Ön tiltakozott az adatkezelés ellen; ez esetben a korlátozás arra az időtartamra vonatkozik, amíg megállapításra nem kerül, hogy az adatkezelő jogos indokai elsőbbséget élveznek-e az érintett jogos indokaival szemben.
Ön jogosult arra, hogy az Önre vonatkozó, az Adatkezelő rendelkezésére bocsátott személyes adatokat tagolt, széles körben használt, géppel olvasható formátumban megkapja, továbbá jogosult arra, hogy ezeket az adatokat egy másik adatkezelőnek továbbítsa.
Ön jogosult arra, hogy a saját helyzetével kapcsolatos okokból bármikor tiltakozzon személyes adatainak kezelése ellen, ha az adatkezelés alapja:
- az adatkezelés közérdekű vagy az adatkezelőre ruházott közhatalmi jogosítvány gyakorlásának keretében végzett feladat végrehajtásához szükséges;
- az adatkezelés az adatkezelő vagy egy harmadik fél jogos érdekeinek érvényesítéséhez szükséges.
Ebben az esetben az adatkezelő a személyes adatokat nem kezelheti tovább, kivéve, ha az adatkezelő bizonyítja, hogy az adatkezelést olyan kényszerítő erejű jogos okok indokolják, amelyek elsőbbséget élveznek az érintett érdekeivel, jogaival és szabadságaival szemben, vagy amelyek jogi igények előterjesztéséhez, érvényesítéséhez vagy védelméhez kapcsolódnak.
Ha a személyes adatok kezelése közvetlen üzletszerzés érdekében történik, az érintett jogosult arra, hogy bármikor tiltakozzon a rá vonatkozó személyes adatok e célból történő kezelése ellen, ideértve a profilalkotást is, amennyiben az a közvetlen üzletszerzéshez kapcsolódik.
Ha az Adatkezelő adatvédelmi incidenst észlel, és az adatvédelmi incidens valószínűsíthetően magas kockázattal jár az Ön jogaira és szabadságaira nézve, az Adatkezelő késedelem nélkül tájékoztatja Önt az adatvédelmi incidensről.
A fenti ügyekben kérelmét benyújthatja Babarczi Tímea egyéni vállalkozóhoz (székhely: 6120 Kiskunmajsa, Petőfi S.u.31.) telefonszám: +36 (20) 401 0977 e-mail: babarczi.timea@majsahome.hu). Az Adatkezelő indokolatlan késedelem nélkül, de a kérelem beérkezésétől számított 1 hónapon belül tájékoztatja önt a kérelem nyomán hozott intézkedésekről.
Szükség esetén, figyelembe véve a kérelem összetettségét és a kérelmek számát, ez a határidő további 2 hónappal meghosszabbítható. A határidő meghosszabbításáról az Adatkezelő a késedelem okainak megjelölésével a kérelem kézhezvételétől számított 1 hónapon belül tájékoztatja önt. Ha Ön elektronikus úton nyújtotta be a kérelmet, a tájékoztatást lehetőség szerint elektronikus úton kell megadni, kivéve, ha Ön azt másként kéri.
Ha az Adatkezelő nem tesz intézkedéseket az ön kérelme nyomán, késedelem nélkül, de legkésőbb a kérelem beérkezésétől számított 1 hónapon belül tájékoztatja az intézkedés elmaradásának okairól. Az intézkedés elmaradása esetén, vagy a megtett intézkedés kapcsán ön panaszt nyújthat be a Nemzeti Adatvédelmi és Információszabadság Hatóságnál, és élhet bírósági jogorvoslati jogával.
Ön jogosult a Nemzeti Adatvédelmi és Információszabadság Hatóság eljárását kezdeményezni, amennyiben személyes adatok kezelésével kapcsolatban jogsérelem következett be, vagy annak közvetlen veszélye fennáll. A Hatóság elérhetőségei: postacím: 1530 Budapest, Pf.: 5., telefonszám: +36 (1) 391-1400, e-mail cím: ugyfelszolgalat@naih.hu, honlap: http://naih.hu.
Ön a jogainak megsértése esetén az Adatkezelő ellen bírósághoz fordulhat. A per elbírálása a törvényszék hatáskörébe tartozik. A per - az Ön választása szerint – a lakóhelye vagy tartózkodási helye szerinti törvényszék előtt is megindítható.
Ha a személyes adatainak kezelésével kapcsolatban bármilyen panasza vagy problémája van, kérjük, forduljon az Adatkezelőhöz, mielőtt a fenti eljárások bármelyikét elindítja.
Hasonló ingatlanok
Kiskunmajsa, FŐ UTCA
ÜZLETI- ÉS LAKÓ CÉLRA IS ALKALMAS FELÚJÍTANDÓ INGATLAN KISKUNMAJ...
Kiskunmajsa, Fő utca
Bács-Kiskun megyében, Kiskunmajsán a Fő utca 189. szám alatt eladó egy 1998-ban épült kétszintes, tégla falaza...
Kiskunmajsa, Vágóhíd utca
Bács-Kiskun megyében, Kiskunmajsán a Vágóhíd utcában eladó egy 1980-as években épült, tégla falazatú 160 m2-es...